Key Features
- Los Alcazares, Murcia
- Townhouse
- 3 bedrooms
- 2 bathrooms
- 135 m2 build
- 0 m2 plot
- Swimming Pool: Yes
Description
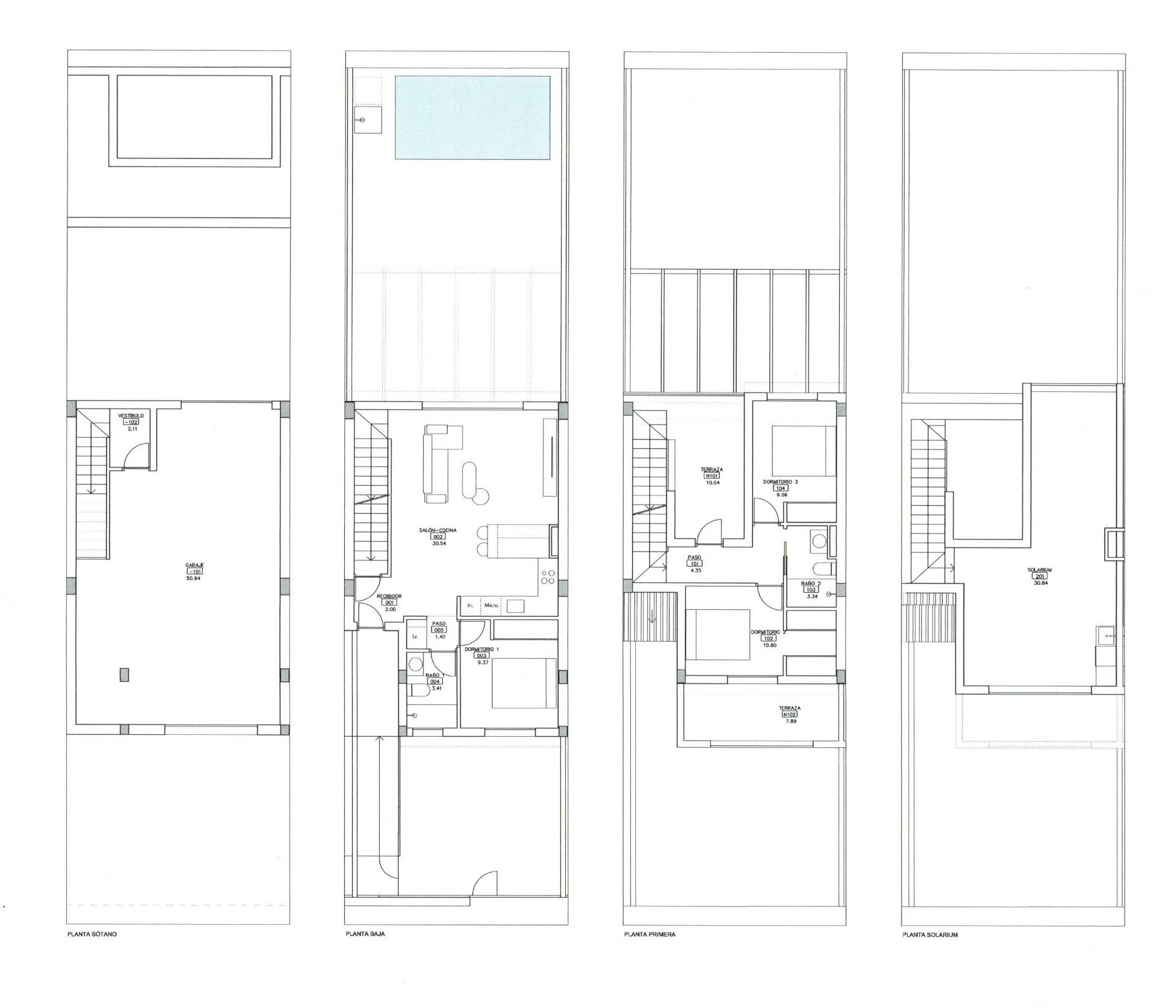
New-Build Townhouses on the Frontline of La Serena Golf in Los AlcázaresPremium Location by the Golf Course and the SeaDiscover an exclusive residential development of 31 new-build townhouses located on the frontline of La Serena Golf in Los Alcázares, just 600 m from the Mar Menor. Situated in the heart of the Costa Cálida, this privileged setting combines golf, beach, and Mediterranean lifestyle. With all amenities nearby and excellent road access, it is the ideal location for both holidays and year-round living.Modern Homes with Private Pool and Rooftop SolariumEach house features a stylish contemporary design and bright interior spaces. The homes are arranged across three levels plus rooftop solarium, offering maximum comfort and privacy:Basement with private garage for 2 cars and access to a patioGround floor with open-plan living room and kitchen leading to a garden and private pool, 1 bedroom, and 1 bathroomFirst floor with 2 bedrooms, 1 bathroom, and 2 terracesRooftop solarium with summer kitchen, ideal for relaxing and enjoying panoramic viewsEast and west orientations ensure excellent natural light and outdoor living throughout the day.High-Quality Finishes and ComfortThese houses are built to the highest standards, offering premium features including:Private swimming poolBasement garage for 2 cars with motorized doorAerothermal hot-water systemFully installed ducted air conditioningFurnished and equipped kitchenFully equipped bathrooms with furniture, mirrors, and shower screensSecurity entrance doorLive Between the Sea and the FairwaySet among lush Mediterranean landscapes, this exclusive community offers peaceful living next to the Serena Golf course, a renowned 18-hole course surrounded by nature and tranquil lakes. The warm, shallow waters of the Mar Menor are perfect for swimming and enjoying water sports such as sailing, paddle surf, and kayaking year-round.Key distances:Beach (Mar Menor): 600 mLa Serena Golf: next to the complexLos Alcázares center: 2 kmCartagena: 22 kmMurcia city: 40 kmMurcia Airport: 30 kmAlicante Airport: 90 kmSecure Your Mediterranean LifestyleWhether you are looking for a permanent residence, a holiday home, or a profitable investment, these houses offer luxury, convenience, and a superior coastal lifestyle.Contact us today to schedule a viewing and secure your new home in Los Alcázares.




























